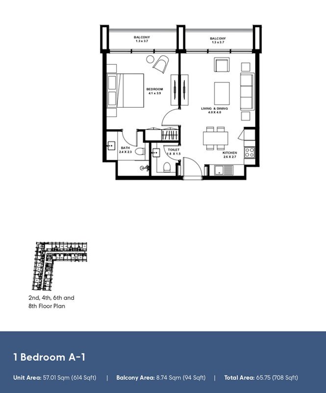
Nasaq 1 at Aljada, Sharjah is a new residential development presented by Arada Developer that offers a collection of 1, 2 and 3 bedroom apartments. This exclusive design façade let you experience boulevard living in harmony with nature, where you
community, which features access to family entertainment destination Madar and the creative energy of the Naseej District’s world-class museum. While residents are living just a short walk away from the modern business park, the international schools, and an exclusive range of other attractions. Everything you need in life is available just outside your door, whereas the active lifestyle comes with extensive sporting facilities and access to outdoor event areas. Key Highlights: Upscale design 1, 2 and 3 bedroom apartments Located near the famous landmarks Leisure areas and Posh facilities Attractive and flexible payment plan options Direct access to boulevard and dining experience Smart home features with premium white goods
Aljada



















