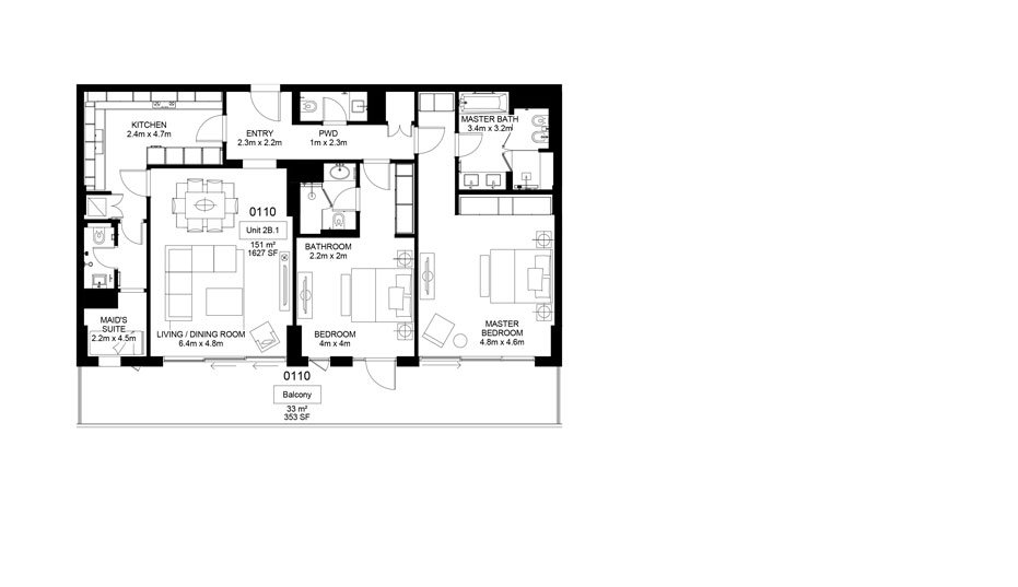
A prime beachfront development, Mamsha Al Saadiyat by Aldar Properties comprises of 1 to 4 bedroom apartments, 1 bedroom lofts, 2 to 3 bedroom townhouses and 5 bedroom penthouses in Abu Dhabi. Offering stunning views of the sea and the
to be an absolute investment option. Home to a total of 461 residential units, the development provides direct access to the beach and lies in proximity to some of the finest museums. Moreover, you will benefit from the plethora of retail and F& B outlets. A premium residential development, it does present a whole new concept of living. Project Highlights: A beachfront development situated within the Saadiyat Island Comprises of elegant apartments, luxury townhouses and penthouses Features a total of 9 residential buildings All units to offer great views of the sea Lined with some of the finest facilities and amenities Lies in close proximity to world-class museums Attractive and feasible payment plan
Saadiyat Island



















