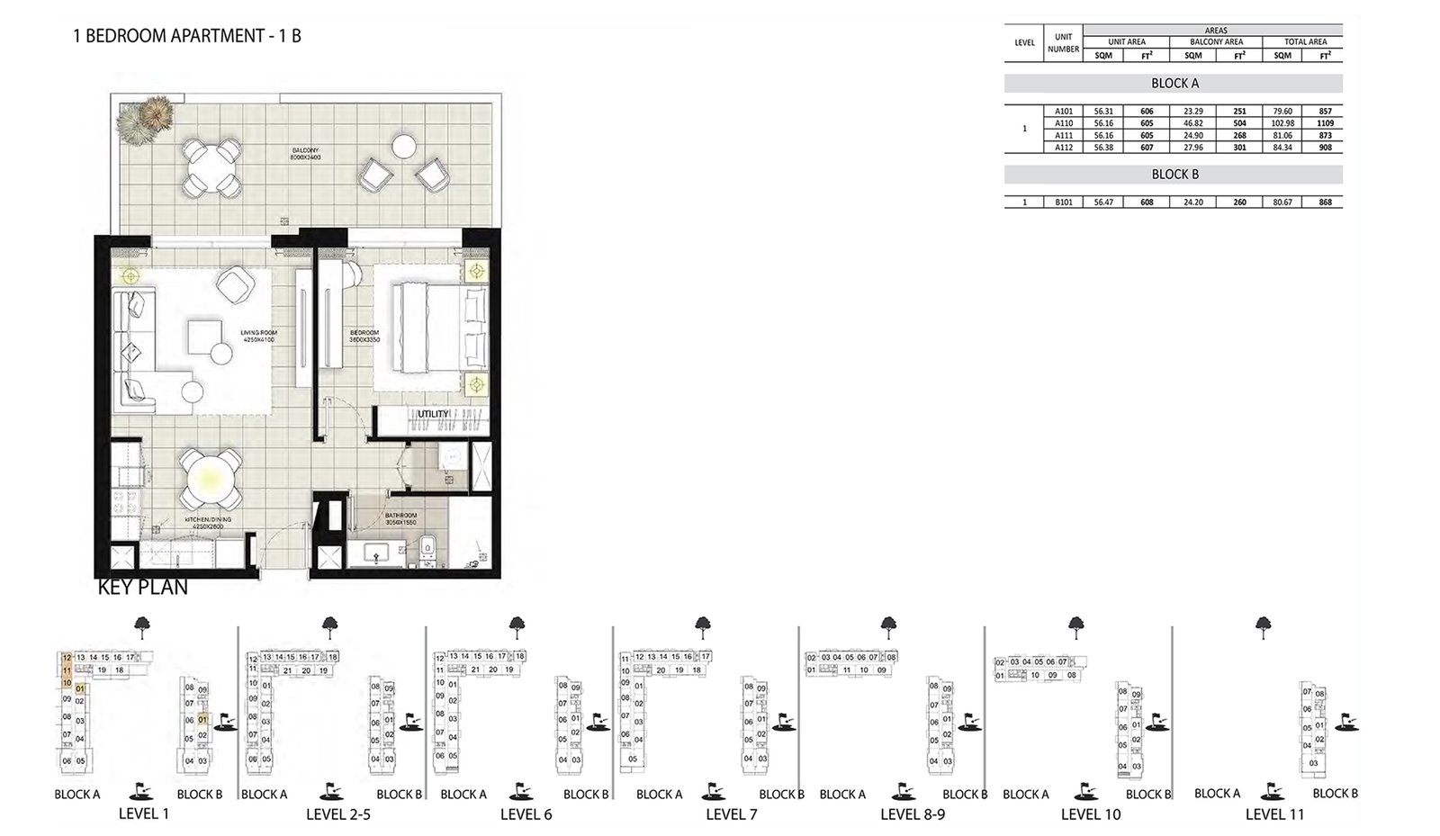
Emaar Properties, a leading real estate developer in Dubai, is joining Golf Views, a new residential project in Emaar South with choices of 1, 2, 3 & 4 bedroom luxury apartments with beautiful interior and exterior designs and are one
project offers transportation capacity for the people of southern Emaar. Key Highlights: A few minutes’ drives from Al Maktoum International Airport Diversified housing assistance with a variety of sizes Nearby 18-hole championship golf course, schools Hotels and retail community amenities and parks Fully incorporated transport system close by Dubai metro link
Dubai South



















